Mobile Service: Learning from Intentional Communities


Advanced Studio with Daisy Ames

*In Progress
**Very rough page, working on iterative process
Spring 2025


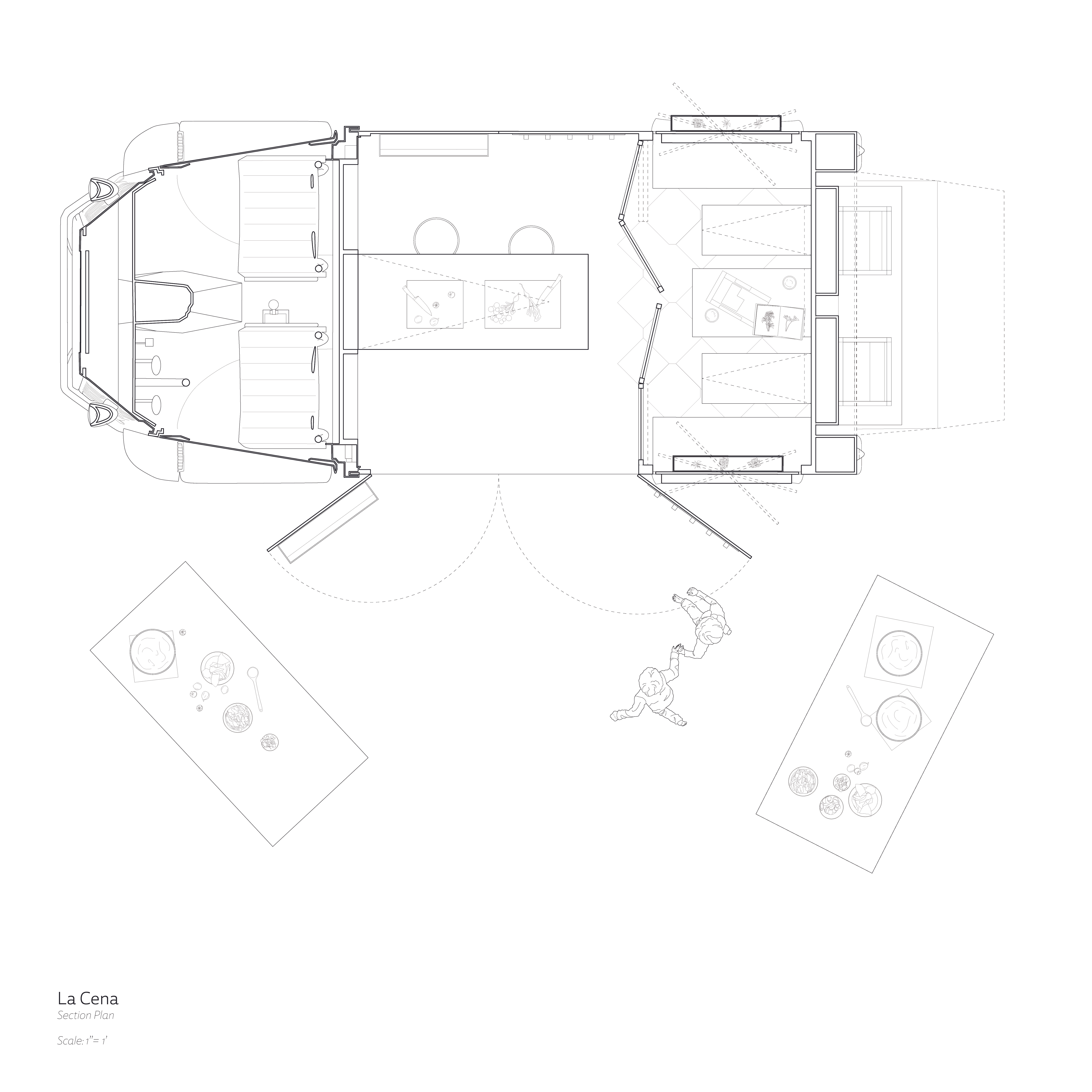
Week 8: Way Station and Secure Housing 

Who

Where


How  



Week 7: Site Visit, Palm Springs & Salton Sea 
Reflection 



Textures


Landscape



Week 6: Midterm, Drawings and Model 
Section and Plan 

Initial Draft of Site Plan





Week 3: Final Site Selection, Updated Site Analysis and Mapping














Week 2: Site Analysis & Sketch Modelling



Week 1: EcoVillage in Ithaca, NY, A Case Study

Before reimagining the Citroen H Model Truck, our studio wanted to learn from precedents of intentional communities around the world. For my precedent, I chose the Ecovillage at Ithaca. 

I was particularly drawn to their recent embrace of permaculture, understanding interconnected systems between nature and a residential area. I wanted to capture this layered understanding of land through my plan, borrowing from a familiar craft: quilting. Using a base plan and Karryn Olson-Ramanujan’s 2010 Site Assessment, I challenged myself to try a new form of representation that captures the dynamic forces that embrace a community. 



To further digest the research I had done, I was inspired by Cornerstone Indicator’s spider graphs. The graph below compares Liveability between a typical American suburb, EcoVillage Ithaca when founded, and EcoVillage Ithaca 30 years after.